Site and sculpture design project

Padlock Sculpture Installation

This project brought together site design, conceptual development, CAD modeling, and physical prototyping for a sculpture installation intended for Paris District High School. It moved from courtyard planning and hand sketches to a functional maple leaf padlock design that supported the larger installation concept.

Project type Site design, concept development, sculpture detailing, and prototype validation
Timeline Nov 2024
Core tools AutoCAD, SketchUp, Onshape, drawings, 3D printing, presentation graphics
Outcome Selected for construction at the school and recognized with an Architectural Award from MMMC Architects

Overview

A concept-to-prototype project built around place, identity, and execution.

The project began with the school site itself. I recreated the Paris District High School layout in AutoCAD, then built a 3D SketchUp model of a redesigned courtyard so the sculpture could be evaluated in context for scale, placement, and visual integration. That site modeling work established the setting before the sculpture design was developed in detail.

Technical highlights

Site planning and spatial context

Recreated the school layout in AutoCAD and translated the courtyard redesign into a 3D SketchUp model so the installation could be evaluated as part of an actual place rather than as an isolated object.

Concept development and communication

Developed hand-drawn sculpture concepts that connected the design to the school, local identity, and the intended emotional role of the installation in the space.

Functional padlock design

Designed a functional maple leaf padlock in Onshape, produced a full drawing set, and 3D printed a prototype to validate both the assembly and the larger concept.

Why it mattered

The padlock itself served as both a design feature and a proof-of-concept object tied to the larger sculpture theme. That made the project stronger than a pure concept pitch: the spatial planning, visual development, mechanical detailing, and physical prototyping all supported one another.

The final design was selected to be constructed at the school and also received an Architectural Award from MMMC Architects, making it one of the strongest examples in this portfolio of design communication, spatial planning, and concept-to-prototype execution.

Media and artifacts

Courtyard visualization Open full size
SketchUp views of the redesigned school courtyard and sculpture context

The SketchUp model shows how the installation was evaluated in context for scale, placement, circulation, and visual integration within the redesigned courtyard.

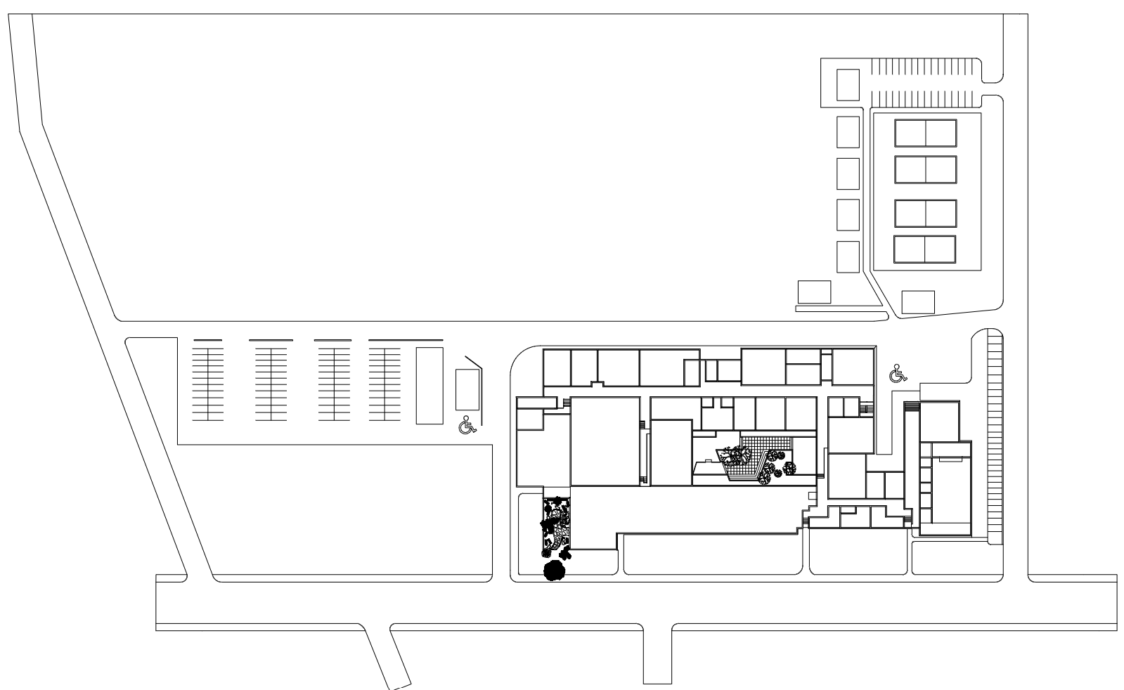
School layout Open full size
AutoCAD school layout used for the sculpture project

The AutoCAD school layout established the real site geometry that the courtyard redesign and sculpture proposal had to respond to.

Hand-drawn concept Open full size
Hand-drawn concept for the padlock sculpture installation

The concept sketch captured the identity, narrative, and physical character of the sculpture before it was translated into the more technical stages of the project.

Padlock assembled Open full size
Assembled CAD model of the maple leaf padlock

The maple leaf padlock served as both a symbolic design feature and a working proof-of-concept object connected to the larger installation.

Padlock exploded Open full size
Exploded CAD model of the maple leaf padlock

The exploded view communicates how the lock was detailed, assembled, and validated as a functional component within the project.